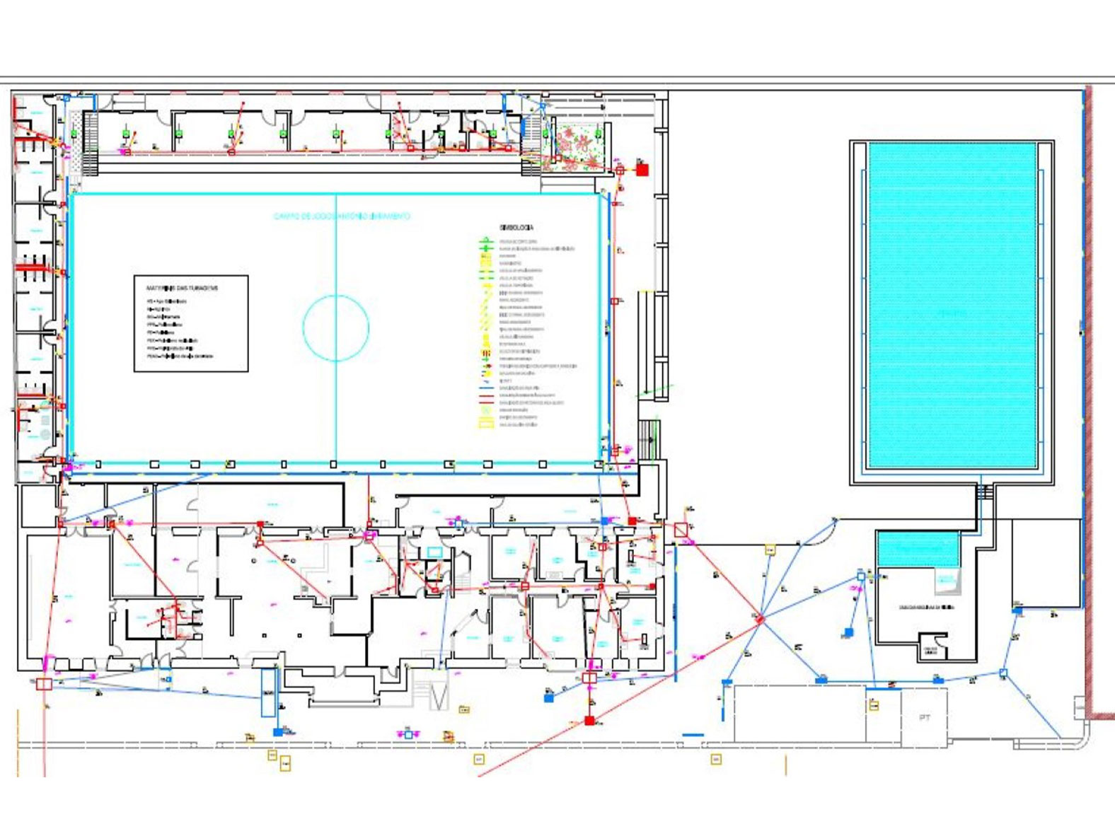
2016 Edificio 5 - JFB Share: Share Tweet Share • Junta de Freguesia de Benfica – janeiro 2016• Serviços Solicitado: Levantamento da Rede de Abastecimento e Saneamento Seguinte